€ 63.000
(ID: 18230)
Објавено: 19.02.2026
Објавено: 19.02.2026
Опис
-
Опис:
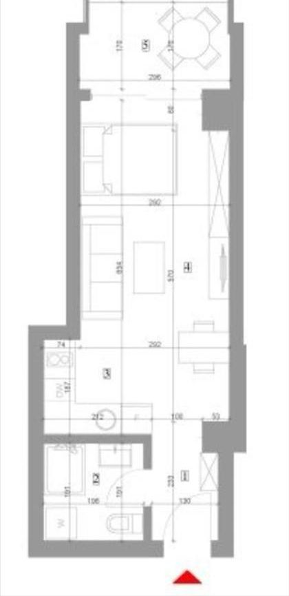
🏢 Се продава веднаш вселива гарсоњера кај ФОН со поглед кон парк
Се продава нова гарсоњера од 31 м² на 6-ти кат во зграда со лифт, лоцирана кај ФОН, во близина на Мерцедес и спроти паркот со „Авионче“. Станот нуди одлична локација и отворен поглед кон парк, идеален за живеење или инвестиција.💶 Цена: 63.000 €
📐 Површина: 31 м²
🛋️ Опременост: Полу наместен
🛏️ Спални: 0
📍 Локација: кај ФОН, Гази Баба🔑 Карактеристики:
• Тип: гарсоњера во зграда
• Кат: 6 (со лифт)
• Греење: струја
• Бања: 1
• Балкон: 1
• Ориентација: југоисток
• Година на градба: 2025
• Состојба: ново / веднаш вселиво
• Паркинг: можност за купување подземно паркинг место⭐ Предности:
✅ Одлична локација во близина на парк и главни сообраќајници
✅ Поглед кон парк
✅ Нова зграда со лифт
Локација
- Населба: Автокоманда
- Општина: Гази Баба
Powered by Estatik

